Hemsworth

Love this home?

Hemsworth

Love this home?

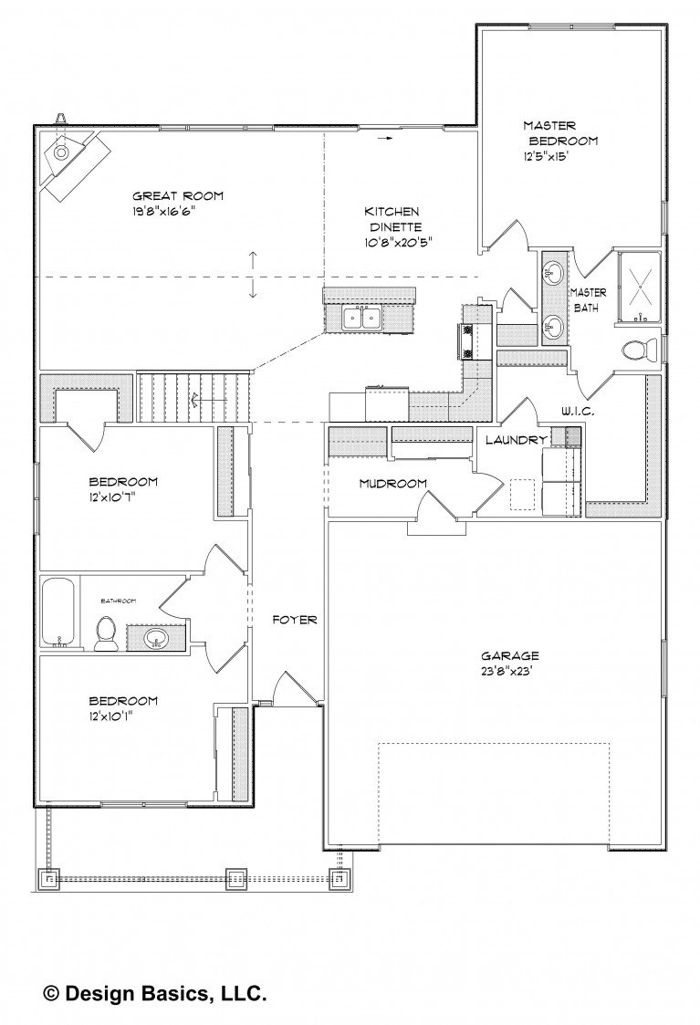
  • 1690 sqft
  • 1 – story, Ranch Style
  • 3 Bedrooms, split
  • 2 Baths
  • 2 Car garage
  • Open concept
  • Eat at kitchen island
  • Natural gas fireplace
  • Master suite w/ walk in closet
  • Main floor laundry
  • Stainless steel dishwasher and micro-hood
  • Width 45’ Depth 57’ 



If you can’t find exactly what you are looking for on our website, please note that Newport Builders is also a builder of custom homes. Have a sketch of your home? Our designer/drawer can transform your thoughts and ideas into a floor plan with a design fee agreement. To schedule your personal home consultation, please contact us at (262) 632-7373 or info@newport-builders.com

Quicksheet
Hemsworth
Square Footage
1,690
Stories
1
Bedrooms
3
Bathrooms
2
Half Bathrooms
0
Garage
2 Car

Virtual Tour

Floor Plan

Hemsworth is available in:

Canopy Hill

Lots from $89,900.00

64 York St
Union Grove, WI

Join our mailing list
to keep updated